【売買希望】新横江2丁目_鉄骨造2階建(25-26)※耐震性あり
ページ番号:763-155-835
最終更新日:2025年10月7日

| 物件所在地 | 鯖江市新横江2丁目 | ||
|---|---|---|---|
| 希望価格 | 【売買】1,480万円 |
||
| 建 築 年 | 昭和63年7月 |
||
| 建物構造 | 鉄骨造2階建て | ||
| 面積:土地 | 242.75平方メートル | ||
| 面積:建物(1階) | 157.64平方メートル | ||
| 面積:建物(2階) | 69.63平方メートル |
||
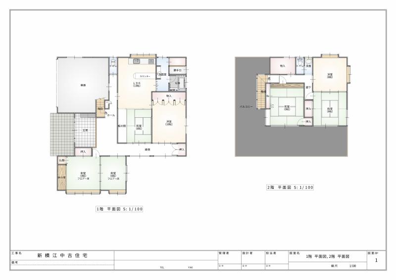
| 間取り(1階) | LDK(13畳)、洋室(10畳)、和室(8畳)、和室(6畳)、和室(6畳)、風呂、トイレ、インナーガレージ |
||
| 間取り(2階) | 洋室(8畳)、和室(9畳)、和室(8畳)、トイレ、バルコニー |
||
| 補修の要否 | 多少の補修必要(入居者負担) |
||
| 物件の特徴 | 水道有、公共下水、オール電化、駐車場有(1~2台)※車の大きさ・ガレージの使用方法により変わります。 | ||
| 特記事項 | 鉄骨造インナーガレージ(電動シャッター)付です。基礎を高くして建築されており、水害に対してもある程度対策済みです。 |
||
| 学校区 | 鯖江東小学校から0.12km(徒歩2分) |
||
| 情報登録日 | 令和7年10月7日 |
||
【位置図】
【間取り図】

【写真】




この物件については、以下の連絡先に問い合わせてください。
| 株式会社アド・ブレイン |
|---|
〒916-0042 |
電話 0778-43-6255 |
お問い合わせ
このページは、防災危機管理課が担当しています。
〒916-8666 鯖江市西山町13番1号(市役所本館2階)
防災・危機管理グループ
TEL:0778-53-2205
空き家対策グループ
TEL:0778-42-5104
FAX:0778-51-8151


















